远洋泵业让挖泥泵更高效
作者:抽沙泵生产厂家 人气:发表时间:2020-03-23 15:40
泰安市远洋泵业是领先的挖泥泵制造商,我们生产挖泥泵有30年的历史。我们的产品在世界各地都享有很高的知名度,并具有做工精美,性能可靠和质量优良的特点。我们的产品在国内外市场上都很受欢迎,并远销巴西,马来西亚,印度尼西亚,泰国,韩国,尼日利亚和其他国家和地区。我们赢得了客户的信任和良好认可。

在挖泥泵的使用中有两个最重要的问题困扰客户,一是挖泥泵的耐磨性,也就是挖泥泵的使用寿命。二是挖泥泵的效率。对于挖泥泵的耐磨性问题,我们在三年前就有了很完美的解决方案,通过材质的提高和热处理的改进,挖泥泵的使用寿命提高了3倍以上。对于挖泥效率的问题,我们的工程师团队也一直在研究,一直在学习世界最先进的技术,最近的研究成果证明我们的产品效率又有了大的进步。我们把工程师如何提高效率的过程介绍给你。
一、 影响挖泥泵泵效率的主要原因就是叶轮
远洋泵业以极大设计法对叶轮进行优化改进。并应用CFD技术预测分析叶片机械内部的复杂流动现象。如流动分离、动静干涉和二次流等。CFD通过分析三维流场分布来指导叶片机械几何参数的改进。通过对比不同叶片几何形状对流场分布的影响,对叶片几何参数进行了优化,使泵效率得到了显著提高。CFD的这种反设计方法改善了流场分布并减少了叶轮内部残余旋涡的存在,通过改变叶片包角和安放角等参数对叶轮进行了优化。采用叶轮极大直径设计法设计的斜切式叶轮具有以下优点。
1. 叶轮前盖板直径约等于泵体内壁直径,在有限的泵体直径条件下,使叶轮直径达到极大值,从而提高泵的扬程。虽然在叶轮的结构参数中,叶轮直径D2、出口宽度b2和出口安放角β2都对扬程有明显影响,但对扬程影响最大的是D2 ,而且加大b2和β2都会加大泵在低扬程大流量工况下的功率,并有可能导致超载运行,甚至烧坏电动机,因此采用叶轮极大直径是获得极大扬程的最好方法。叶轮前盖板直径延伸至接近于泵体内径。在这种情况下,高速的液流在离开叶轮流入泵腔时,其流动方向会由径向向轴向发生90°急剧转向,由此会在泵壁处产生很大的冲击损失。然而实际上液流在流出叶轮时,其轴面速度较小,圆周速度却很大,故一般不会造成水力损失的增加。在传统的离心泵中,叶轮出口与泵壁之间存在着一个较大的环形空间,而经过该进的离心泵的叶轮出口与泵壁之间的环形空间却较小,液流在环形空间内的速度会较高。而事实上液流在离开叶轮进入环形空间时的流速一般确实是很高的,且往往比环形空间内的液流流速高很多,因此适当地增加环形空间内的液流流速可以有效地减小液流速度的变化率,从而进一步减少水力损失。
2. 叶轮前盖板以泵轴为中心呈锥面,使流液在叶轮出口有向上运动的趋势,这有利于提高泵的效率。叶轮前盖板呈锥面形状,使叶轮流道的轴面宽度从进口到出口逐渐减小,这可以为收缩流道的设计提供有利条件,至少可以减少流道的扩散程度,也可以提高泵的效率。
3. 叶轮的叶片出口宽度b2对水泵性能影响很大,故适当加大b2不仅可以提高扬程,还可以提高泵的效率。其准确选择可以通过优化水泵效率的数值模拟,筛选出最高效率的叶片出口宽度b2值。
4. 叶轮的叶片进口边向进口延伸,可使叶片的后盖板流线更长一些,这样不仅可以防止叶轮出口发生二次回流,还有利于提高泵的扬程和效率。由于改进后的泵叶轮后盖板直径小于叶轮前盖板直径,所以在叶轮出口的后盖板压力会低于前盖板压力。如果叶轮后盖板出口处的压力太低,有可能发生二次回流,即叶轮打出去的液体再回到叶轮内。若把叶轮叶片进口边向进口延伸,使叶片的后盖板流线更长一些,则可以提高叶轮后盖板出口处的压力,以防止叶轮出口发生二次回流。同时,叶轮叶片进口边向进口延伸,还可以减小叶片进口边的液流冲击损失和提高水泵效率。
二、试验数据处理方法
① 扬程的计算公式

式中:Pd,Ps为泵出口、进口处液体的静压力;Vd,Vs 为泵出口、进口处液体的速度;Zd,Zs 为泵出口、进口到任选的测量基准面的距离。
② 效率的计算公式
式中:ρ为泵输送液体的密度,kg/m3;Q为泵的流量,m3/s;H为泵的扬程,m;g为重力加速度;P为轴功率,kW;Pe为有效功率,kW。
③ 标准性能的换算
式中:nsp为规定转数;n为测量电机转数;Q为规定转数下的流量;QT为测量流量。
式中: HT为规定转数下的扬程;H为测量转数下的扬程。
式中: PT为规定转数下的输入功率;P为测量功率;Psp为规定液体的密度;ρ为试验液体密度。
式中:nT为规定转数下的效率;n为测量转数下的效率。
三、 确定关键因素
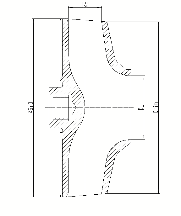
根据专业知识及新型挖泥泵的特殊结构设计要求,取下列七组几何参数作为试验因素:β2(出口安放角)、D2min(叶轮后盖板外径)、b2(出口宽度)、Z(叶片数)、D1(叶片进口直径)、Δβ1(叶片进口冲角),具体位置如图所示。


叶轮二维水力图
试验目的:对模型泵流量Q=2200m3/h、扬程H=30m、转速n=730r/min、比转速ns= 128提出最优效率设计方案。对泵优选方案的偏小流量2100m3/h、额定流量2200m3/h、偏大流量2300m3/h进行两级全流场的数值模拟,网格划分总数为87万、残差收敛精度为10-4、采用标准k-ε模型、SIMPLEC算法、叶轮和导叶表面粗糙度为0.025mm、叶轮进口密封端面轴向间隙完全密封。基于模拟结果,对泵的优化方案的三个工况的压力分布和速度分布等进行分析。
压力分析:


图1 叶轮三个工况下的中截面的静压云图
图1所示为叶轮三个工况下的中截面的静压云图。可知三个工况下的静压都由叶轮进口向出口均匀递增,在叶片尾部工作面压力达到最大,可以看到叶片背面靠近进口区域压力最小。
速度分析:


图2 叶轮三个工况的中截面相对速度矢量图
湍动能分布图



图3 叶轮三个工况的湍动能分布图
远洋泵业运用CFD软件Fluent对泵型进行数值模拟,得出的分流叶片几个设计参数:β2(出口安放角)、D2min(叶轮后盖板外径)、b2(出口宽度)、Z(叶片数)、D1(叶片进口直径)、Δβ2(叶片进口冲角)主次顺序影响关系,并预测其水力性能,经试制其样机并比较试验结果,表明数值模拟能较好地预测其水力性能,为我们的设计及改进提供了依据。
经过新的技术改进后,我们做了实验的样机,经过清水试验和混合液体实验,挖泥泵泵的效率比以前提高了3%,这对于挖泥泵来说,就是一个非常大的进步。我们的工程师团队一直都在追求技术的进步,一刻也没有停歇。
远洋泵业始终关注客户的需求,并始终改进和更新我们的产品,以满足客户的要求和当地施工环境,为客户定制个性化的产品。我们致力于提供完美和独特的挖泥泵,完善的客户服务,不懈地满足客户的需求,客户的满意是我们最重要的商业信誉。我们始终是您最好的合作伙伴。有任何的关于挖泥泵的问题可以咨询我们的工程师:18605381019
下一篇:高扬程吸沙泵不同输送距离的工作状态 上一篇:远洋牌潜水抽沙泵的使用方法
此文关键词:挖泥泵,绞吸泵,大型泥浆泵
同类文章排行
- 河道采砂设备功能解析
- 中国远距离输送泥浆泵的市场现状
- 高扬程吸沙泵不同输送距离的工作状态
- 抽沙泵进口负压表和出口压力表配备的必要性
- 远洋泵业让挖泥泵更高效
- 远洋牌潜水抽沙泵的使用方法
- 马来西亚远洋牌吸沙泵船和皮带吸沙船组合施工
- 开采沙石带来的影响和解决方案
- 矿用泥浆泵的选择和应用
- 立式抽沙泵价格




