抽沙泵结构和抽沙泵原理
作者:远洋泵业 人气:发表时间:2019-01-18 12:00
抽沙泵结构和抽沙泵原理是什么?很多新入行的朋友经常会问到,还有抽沙泵和水泵的区别,抽沙泵能不能抽干沙,抽沙泵使用中需要注意什么等等一系列问题。文章由抽沙泵结构介入,简单介绍一下抽沙泵的使用原理和注意问题。
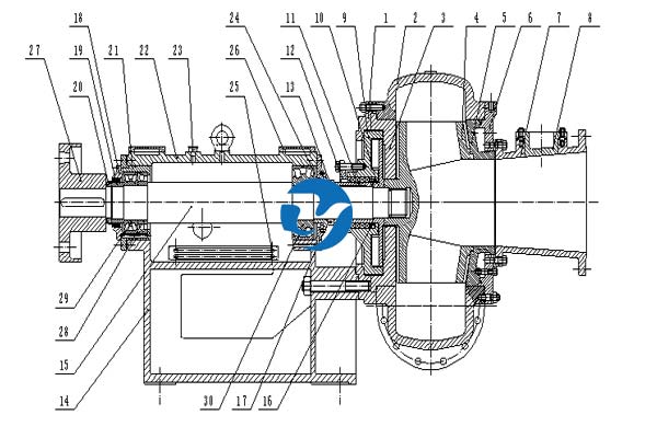
一、 抽沙泵结构
抽沙泵属离心泵,离心泵的技术条件国家标准是1997年7月4日发布的GB/T16907-1997。抽沙泵主要零件是泵壳、叶轮、前后护板、轴、轴承、托架等。泵壳多为蜗壳式,叶轮多为闭式叶轮和半开式叶轮,过流部件多为铸钢、铸铁或高铬合金材质。
二、 抽沙泵原理
抽沙泵通过动力驱动轴产生转动,从而带动叶轮旋转,在抽沙泵及吸沙管路内充满液体的情况下,形成真空吸力,将水及沙土吸取上来。泥沙的含量取决于泵的吸力和抽取介质中水的流量,抽沙泵中流量参数都是以清水理论流量为标准,在实际抽沙工作中,会有少量上下浮动。
普通概念的离心式抽沙泵无法抽取干沙,在卸沙船或者吹沙船中,运输的干沙则是通过注入清水将泥沙混合搅动,从而通过抽沙泵再将其抽取出来达到远距离输送工程作业。
普通概念的离心式抽沙泵无法抽取干沙,在卸沙船或者吹沙船中,运输的干沙则是通过注入清水将泥沙混合搅动,从而通过抽沙泵再将其抽取出来达到远距离输送工程作业。
三、 小结
抽沙泵的结构和原理是选择合适抽沙泵的基础知识,用户可以通过了解抽沙泵的结构和原理然后制定适合自己的抽沙清淤解决方案。
下一篇:冬季抽沙泵防冻措施和注意事项 上一篇:抽沙泵抽不上沙的原因和解决办法
此文关键词:抽沙泵结构,抽沙泵原理
同类文章排行
- 河道采砂设备功能解析
- 中国远距离输送泥浆泵的市场现状
- 高扬程吸沙泵不同输送距离的工作状态
- 抽沙泵进口负压表和出口压力表配备的必要性
- 远洋泵业让挖泥泵更高效
- 远洋牌潜水抽沙泵的使用方法
- 马来西亚远洋牌吸沙泵船和皮带吸沙船组合施工
- 开采沙石带来的影响和解决方案
- 矿用泥浆泵的选择和应用
- 立式抽沙泵价格







